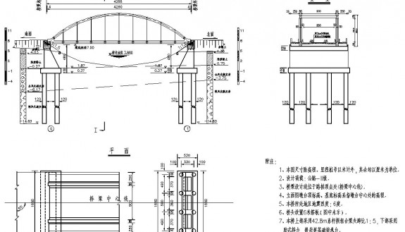
1-40系杆拱 - 【人行天桥】 - 道桥网-桥梁之家—打造桥梁行业最大、最专业的桥梁资料和技术交流基地!道桥之家网! - daoqiao.net
7244130
桥梁工程师
桥梁工程师
  • 金币47408枚
  • 威望1点
  • 贡献值18点
  • 桥币0个
  • RMB0元
阅读:9354回复:3

1-40系杆拱

楼主#
更多 发布于:2012-08-20 17:32
1-40系杆拱
附件名称/大小 下载次数 最后更新
40m细钢拱桥.rar (3568KB)  23 2012-08-20 17:32
nanjingyu
桥梁正高
桥梁正高
  • 金币36枚
  • 威望0点
  • 贡献值20点
  • 桥币0个
  • RMB0元
1楼#
发布于:2012-09-09 09:16
图纸很好,就差说明
mail333
桥梁正高
桥梁正高
  • 金币648枚
  • 威望0点
  • 贡献值0点
  • 桥币0个
  • RMB0元
2楼#
发布于:2012-10-01 10:54
这拱桥漂亮
lixiaolin19
桥梁新手
桥梁新手
  • 金币43枚
  • 威望0点
  • 贡献值0点
  • 桥币0个
  • RMB0元
3楼#
发布于:2013-03-10 15:03
图纸不错,谢谢楼主
游客


返回顶部