钢管混凝土拱桥图纸 - 【拱桥图纸】 - 道桥网-桥梁之家—打造桥梁行业最大、最专业的桥梁资料和技术交流基地!道桥之家网! - daoqiao.net
论坛
版块
喜欢
话题
应用
桥梁之家资料站
软件资料站
搜索
登录
注册
首页
>
桥梁图纸
>
【拱桥图纸】
>
钢管混凝土拱桥图纸
回复
« 返回列表
mail333
桥梁正高
金币
648枚
威望
0点
贡献值
0点
桥币
0个
RMB
0元
加关注
写私信
阅读:
10477
回复:
7
钢管混凝土拱桥图纸
楼主
#
更多
只看楼主
倒序阅读
发布于:2012-03-31 20:12
保存
钢管混凝土简支系杆拱桥施工图.rar
类型:
售价:0
大小:5398KB
下载:
1619
次
描述:全套拱桥资料
[下载]
钢管混凝土拱桥图纸,大家可以看看啊
[/sell]
喜欢
0
最新喜欢:
回复
mail333
桥梁正高
金币
648枚
威望
0点
贡献值
0点
桥币
0个
RMB
0元
加关注
写私信
1楼
#
发布于:2012-03-31 20:23
没传成功
,我回家编辑下传下,晕
回复
(0)
喜欢
(
0
)
loupoo
桥梁工程师
金币
74枚
威望
0点
贡献值
4点
桥币
0个
RMB
0元
加关注
写私信
2楼
#
发布于:2012-04-01 09:10
是不是完整的啊,整理哦好了吗
回复
(0)
喜欢
(
0
)
mail333
桥梁正高
金币
648枚
威望
0点
贡献值
0点
桥币
0个
RMB
0元
加关注
写私信
3楼
#
发布于:2012-04-01 21:48
昨天都已经成功上传
回复
(0)
喜欢
(
0
)
nanjingyu
桥梁正高
金币
36枚
威望
0点
贡献值
20点
桥币
0个
RMB
0元
加关注
写私信
4楼
#
发布于:2013-02-01 09:31
贴个图,方便大家下载
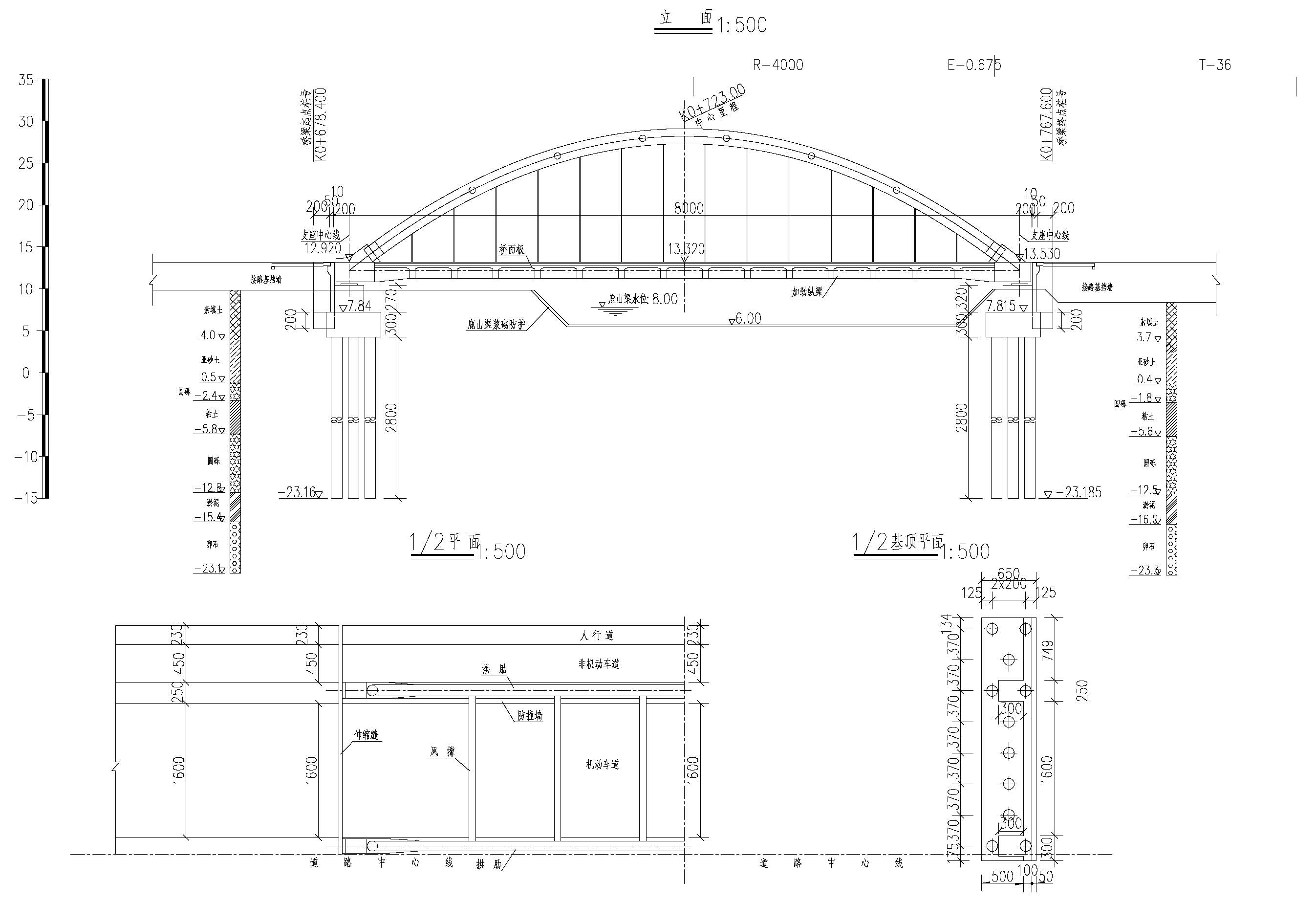
图片:05-6、左幅总体布置图.jpg
图片:05-6、左幅总体布置图.jpg
回复
(0)
喜欢
(
0
)
7244130
桥梁工程师
金币
47408枚
威望
1点
贡献值
18点
桥币
0个
RMB
0元
加关注
写私信
5楼
#
发布于:2013-09-24 12:52
图纸非常好,多谢了
回复
(0)
喜欢
(
0
)
daysee
桥梁副高
金币
542枚
威望
177点
贡献值
205点
桥币
160个
RMB
0元
加关注
写私信
6楼
#
发布于:2015-05-08 14:00
图纸非常好,多谢了
回复
(0)
喜欢
(
0
)
heishazi
桥梁正高
金币
240165枚
威望
0点
贡献值
20点
桥币
0个
RMB
0元
加关注
写私信
7楼
#
发布于:2016-01-31 14:13
已经有了,谢谢分享
回复
(0)
喜欢
(
0
)
发帖
回复
« 返回列表
普通帖
您需要登录后才可以回帖,
登录
或者
注册
返回顶部
关闭
最新喜欢