|
阅读:5993回复:8
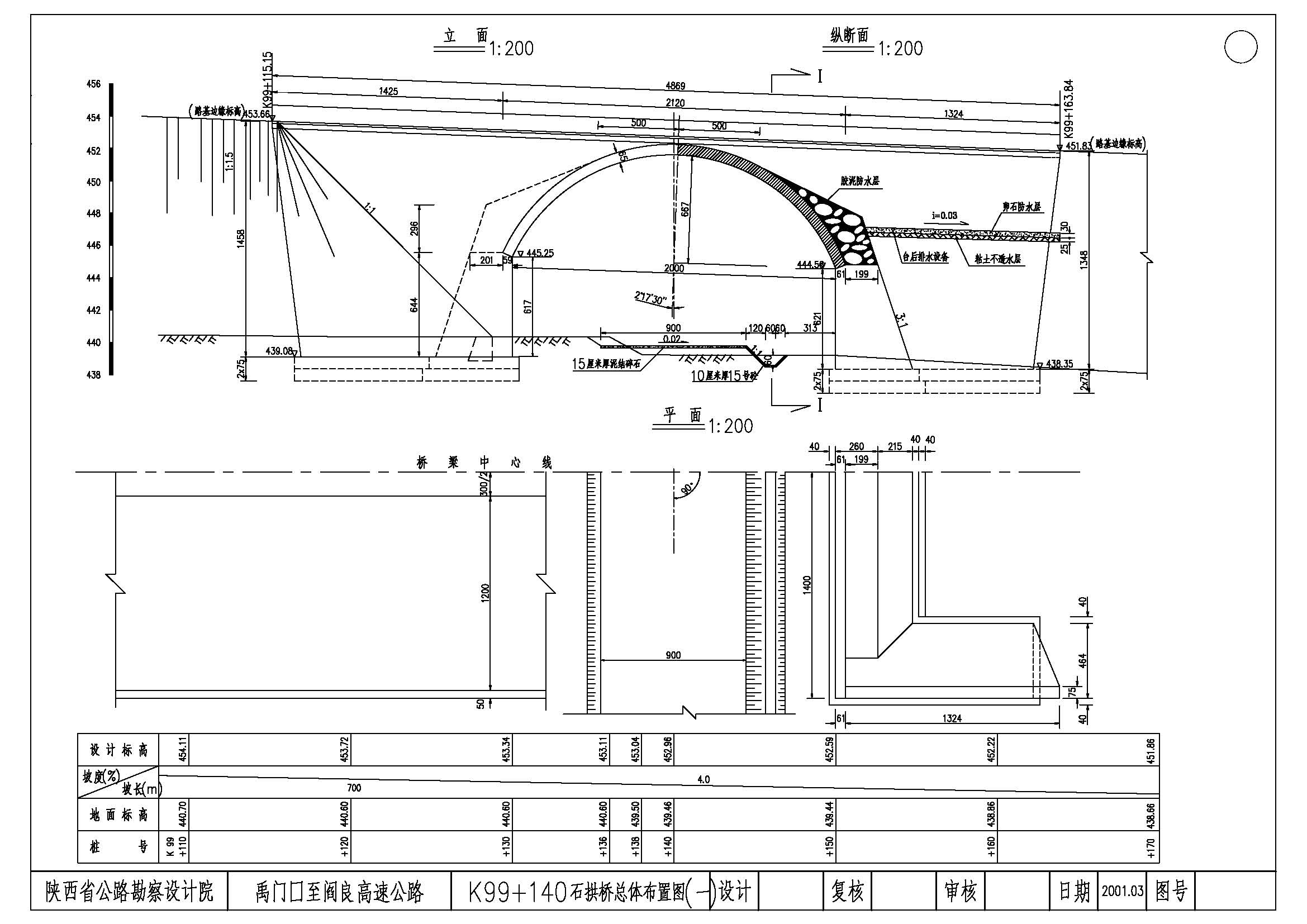
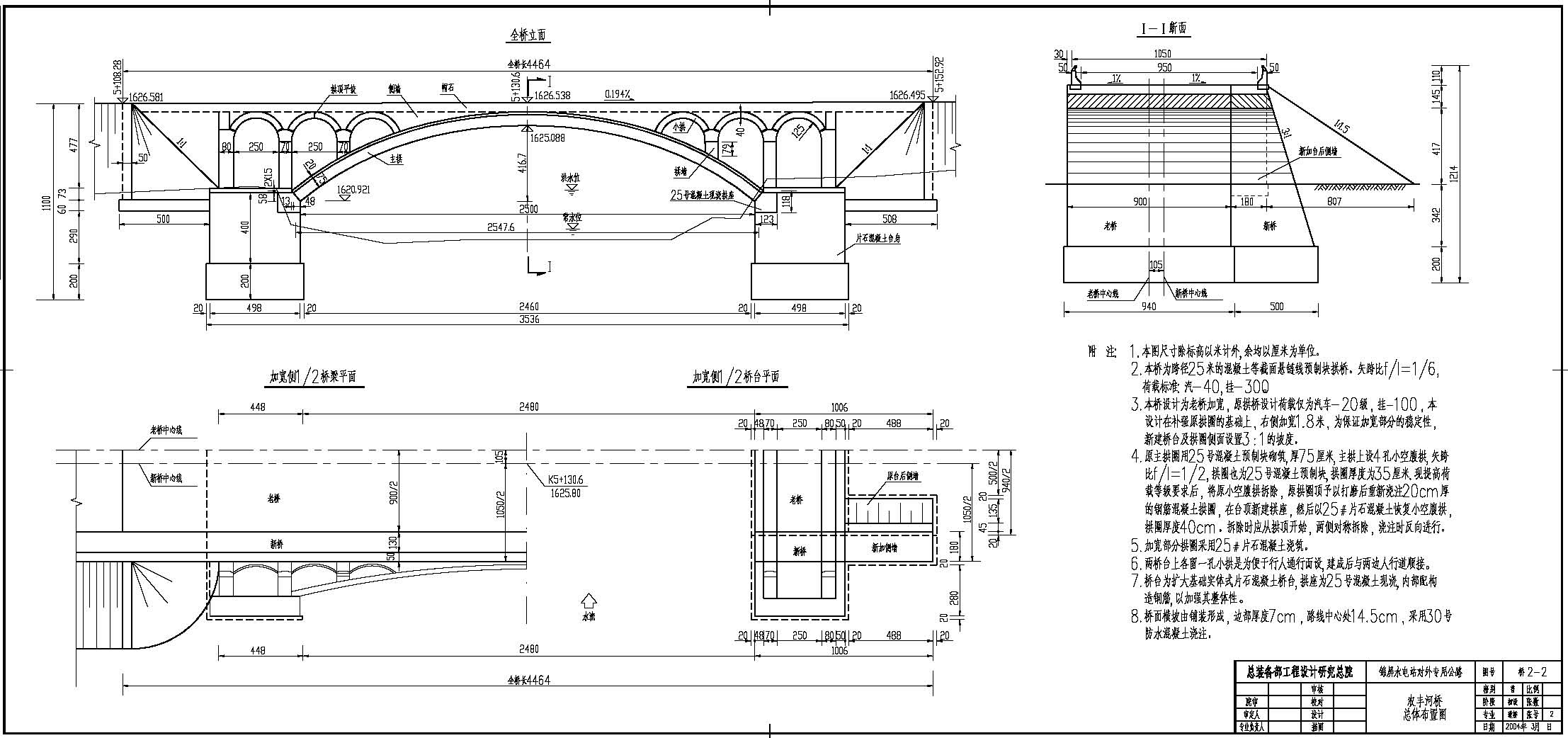
1-20.1-25,1-50石拱桥
1-20.1-25,1-50石拱桥
|
|
|
|
3楼#
发布于:2011-03-23 09:25
我看看。
|
|
|
4楼#
发布于:2011-06-17 16:48
谢谢
|
|
|
|
6楼#
发布于:2011-07-30 15:17
图纸还可以,就是少点
|
|
|
|
7楼#
发布于:2013-01-09 17:23
图片:50桥型图.jpg ![]() 图片:ZTBZT.jpg ![]() 图片:ZTT.jpg |
|


