1-30m钢筋砼双曲拱桥 - 【拱桥图纸】 - 第2页 - 道桥网-桥梁之家—打造桥梁行业最大、最专业的桥梁资料和技术交流基地!道桥之家网! - daoqiao.net
little_jimmy
桥梁新手
桥梁新手
  • 金币2枚
  • 威望0点
  • 贡献值0点
  • 桥币0个
  • RMB0元
10楼#
发布于:2011-10-21 10:44
卖得贵点了吧
zuozigui
桥梁新手
桥梁新手
  • 金币1枚
  • 威望0点
  • 贡献值17点
  • 桥币0个
  • RMB0元
  • 社区居民
11楼#
发布于:2012-08-30 09:40
验算过吗?
mail333
桥梁正高
桥梁正高
  • 金币648枚
  • 威望0点
  • 贡献值0点
  • 桥币0个
  • RMB0元
12楼#
发布于:2012-09-02 11:20
 
mail333
桥梁正高
桥梁正高
  • 金币648枚
  • 威望0点
  • 贡献值0点
  • 桥币0个
  • RMB0元
13楼#
发布于:2012-09-11 21:43
nanjingyu
桥梁正高
桥梁正高
  • 金币36枚
  • 威望0点
  • 贡献值20点
  • 桥币0个
  • RMB0元
14楼#
发布于:2012-12-17 09:36
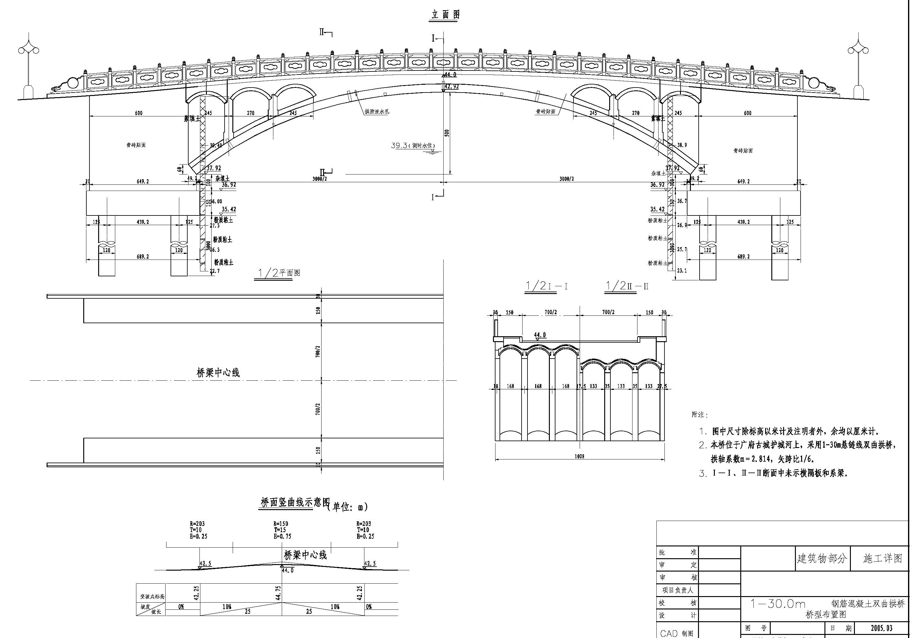
建筑风格的

图片:QQ截图20121217093323.png


图片:02总布置图.dwg Model (1).jpg

heishazi
桥梁正高
桥梁正高
  • 金币240165枚
  • 威望0点
  • 贡献值20点
  • 桥币0个
  • RMB0元
15楼#
发布于:2016-01-29 22:07
虽然有了,但是还是很感谢!
上一页 下一页
游客


返回顶部