|
阅读:7733回复:10
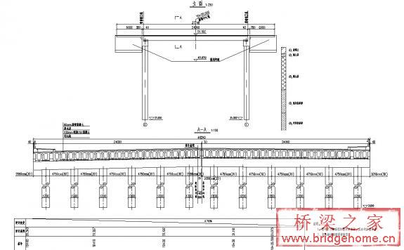
1-25m跨径后张法空心板桥全套图纸
1-25m跨径后张法空心板桥全套图纸
|
|
|
|
3楼#
发布于:2010-03-09 08:32
楼主能把该桥的详细参数说一下吗??
|
|
|
|
6楼#
发布于:2010-03-13 10:31
1111111111111111111111111111
|
|
上一页
下一页
