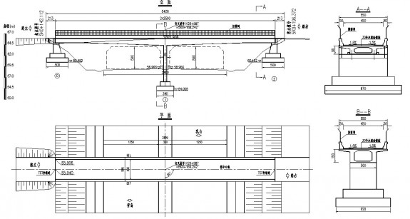
2-25mT型刚构人行天桥 - 【人行天桥】 - 道桥网-桥梁之家—打造桥梁行业最大、最专业的桥梁资料和技术交流基地!道桥之家网! - daoqiao.net
7244130
桥梁工程师
桥梁工程师
  • 金币47408枚
  • 威望1点
  • 贡献值18点
  • 桥币0个
  • RMB0元
阅读:8624回复:2

2-25mT型刚构人行天桥

楼主#
更多 发布于:2012-08-20 17:04
2-25mT型刚构人行天桥
附件名称/大小 下载次数 最后更新
2-25mT型刚构人行天桥.rar (585KB)  7 2012-08-20 17:04
nanjingyu
桥梁正高
桥梁正高
  • 金币36枚
  • 威望0点
  • 贡献值20点
  • 桥币0个
  • RMB0元
1楼#
发布于:2012-09-21 09:05
恨有参考价值
果粒多
桥梁副高
桥梁副高
  • 金币282枚
  • 威望0点
  • 贡献值0点
  • 桥币0个
  • RMB0元
  • 社区居民
2楼#
发布于:2012-09-22 14:33
   
游客


返回顶部