桥面连续和伸缩缝 - 【桥梁附属】 - 道桥网-桥梁之家—打造桥梁行业最大、最专业的桥梁资料和技术交流基地!道桥之家网! - daoqiao.net
dezhi10
桥梁正高
桥梁正高
  • 金币633枚
  • 威望213点
  • 贡献值237点
  • 桥币221个
  • RMB-2000元
阅读:11990回复:11

桥面连续和伸缩缝

楼主#
更多 发布于:2009-11-23 10:06
桥面连续和伸缩缝
免费,不要钱,做人要厚道!
附件名称/大小 下载次数 最后更新
桥面连续和伸缩缝.rar (143KB)  61 2009-11-23 10:06
wyc912
桥梁新手
桥梁新手
  • 金币8枚
  • 威望27点
  • 贡献值58点
  • 桥币34个
  • RMB0元
1楼#
发布于:2009-12-16 07:30
新规范还是老规范???????
phantomfox
桥梁正高
桥梁正高
  • 金币582枚
  • 威望1点
  • 贡献值1点
  • 桥币0个
  • RMB0元
  • 社区居民
2楼#
发布于:2011-02-21 15:41
不知道什么东东,先下下来看看~
phantomfox
桥梁正高
桥梁正高
  • 金币582枚
  • 威望1点
  • 贡献值1点
  • 桥币0个
  • RMB0元
  • 社区居民
3楼#
发布于:2011-02-21 15:44
居然是图纸~楼主太不厚道了,说是免费,居然还收1个币~~~
不是忽悠人么?
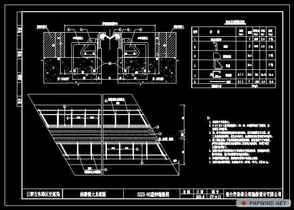
截个图给大家参考下有没有实用价值。

图片:2.jpg

图片:1.jpg

zlz1210
桥梁新手
桥梁新手
  • 金币6枚
  • 威望0点
  • 贡献值0点
  • 桥币0个
  • RMB0元
4楼#
发布于:2011-05-17 23:48
 
zzz
zzz
桥梁副高
桥梁副高
  • 金币2枚
  • 威望0点
  • 贡献值0点
  • 桥币0个
  • RMB0元
5楼#
发布于:2011-05-20 07:16
新规范还是老规范???????
呵呵1979
桥梁工程师
桥梁工程师
  • 金币169枚
  • 威望0点
  • 贡献值0点
  • 桥币0个
  • RMB0元
6楼#
发布于:2011-06-02 08:49
新规范还是老规范???????
xbxvbing
桥梁正高
桥梁正高
  • 金币1078枚
  • 威望1点
  • 贡献值0点
  • 桥币0个
  • RMB0元
  • 社区居民
  • 原创达人
7楼#
发布于:2011-06-12 10:10
LZ详细说明下啊
zzz
zzz
桥梁副高
桥梁副高
  • 金币2枚
  • 威望0点
  • 贡献值0点
  • 桥币0个
  • RMB0元
8楼#
发布于:2011-09-08 08:46
祥细介绍一下
zzz
zzz
桥梁副高
桥梁副高
  • 金币2枚
  • 威望0点
  • 贡献值0点
  • 桥币0个
  • RMB0元
9楼#
发布于:2011-10-24 08:56
新规范还是老规范???
上一页
游客


返回顶部