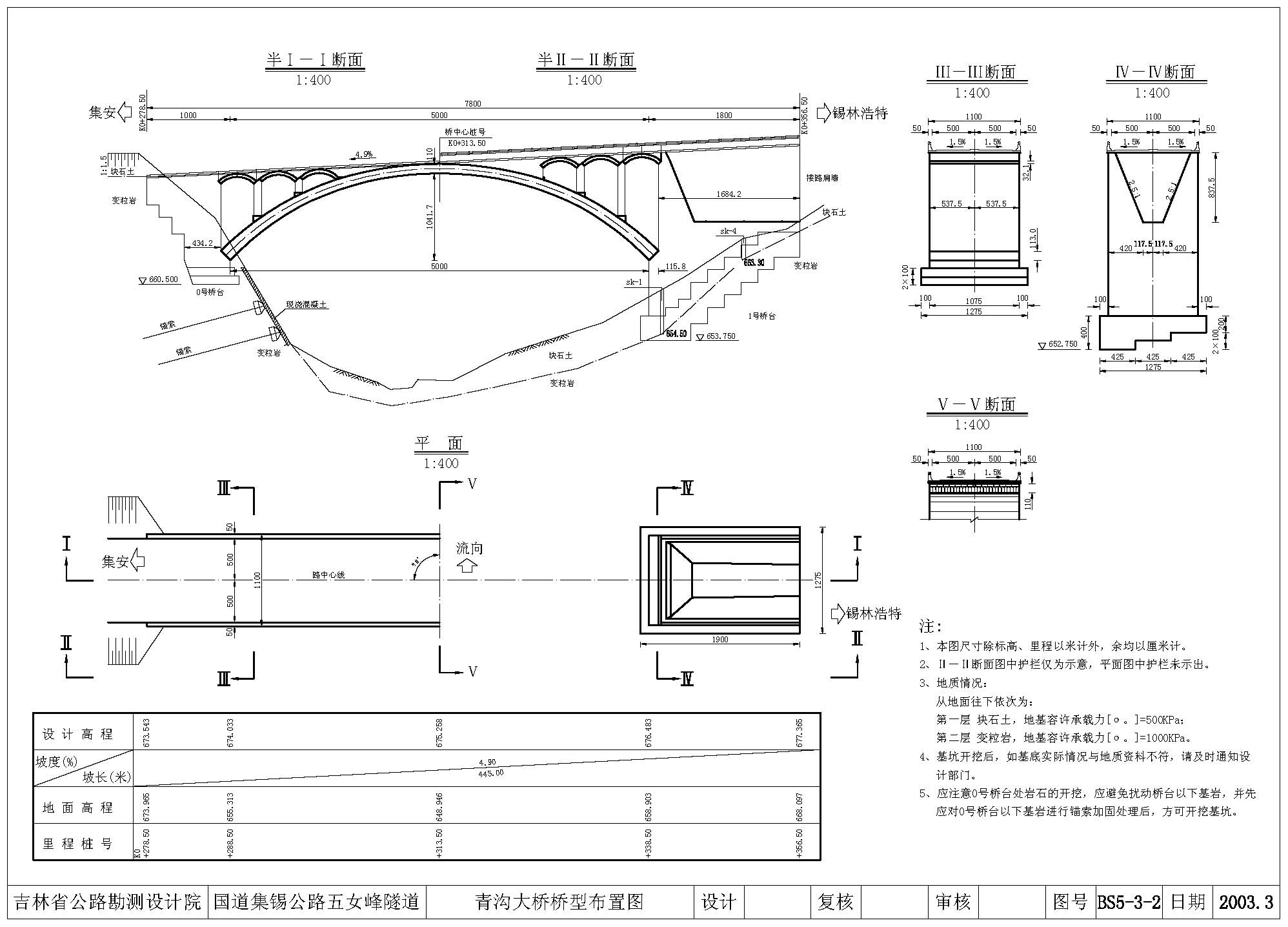
清沟大桥 1-50m石拱桥全部图纸 - 【拱桥图纸】 - 第2页 - 道桥网-桥梁之家—打造桥梁行业最大、最专业的桥梁资料和技术交流基地!道桥之家网! - daoqiao.net
xbszljr
桥梁工程师
桥梁工程师
  • 金币38枚
  • 威望0点
  • 贡献值0点
  • 桥币0个
  • RMB0元
10楼#
发布于:2011-03-08 08:58
 
xbszljr
桥梁工程师
桥梁工程师
  • 金币38枚
  • 威望0点
  • 贡献值0点
  • 桥币0个
  • RMB0元
11楼#
发布于:2011-03-15 08:57
 
nanjingyu
桥梁正高
桥梁正高
  • 金币36枚
  • 威望0点
  • 贡献值20点
  • 桥币0个
  • RMB0元
12楼#
发布于:2012-12-27 09:20
图纸不错

图片:桥型图.dwg Model (1).jpg

heishazi
桥梁正高
桥梁正高
  • 金币240165枚
  • 威望0点
  • 贡献值20点
  • 桥币0个
  • RMB0元
13楼#
发布于:2016-01-29 23:16
缺好多东西,
上一页 下一页
游客


返回顶部